Menü
  • 8/8_23/01.jpg
  • 8/8_23/02.jpg
  • 8/8_23/1.jpg
  • 8/8_23/2.jpg
  • 8/8_23/3.jpg

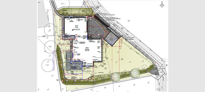
Freianlagen Einfamilienhaus Großröhrsdorf

Bauherr: privat
Leistungsumfang: LPH 1-8 gem. §39 HOAI Freianlagenplanung

Gestaltung der Freianlagen für ein neu errichtetes Einfamilienhaus mit Terrasse, Hofgestaltung, Bepflanzungen und Einfriedung

Leistungszeitraum: 2019-2020

© LUNZE ARCHITEKTEN 2025
KUNDENLOGIN
IMPRESSUM
DATENSCHUTZ

Unsere Website verwendet ausschließlich nicht zustimmungspflichtige,
technisch notwendige Cookies, um Ihnen ein angenehmeres Surfen zu ermöglichen.