Menü
  • 13/13_7/000001.jpg
  • 13/13_7/000002.jpg
  • 13/13_7/000003.jpg
  • 13/13_7/000004.jpg
  • 13/13_7/000005.jpg

Alte Post Heidenau
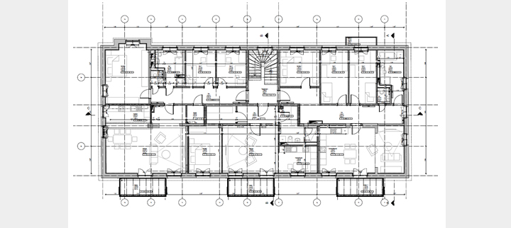
Umbau "Alte Post Heidenau" zu Wohnungen

Bauherr: HPB – Heidenauer Privatisierungs- und Bauträger GmbH
Leistungsumfang: Generalplanung LPH 1-8 HOAI in den Leistungsbildern Architektur, Tragwerksplanung und Freianlagen

Umbau und Umnutzung des ehemaligen Postgebäudes von-Stephan-Straße 2 in Heidenau zu einem Wohngebäude mit 8 Wohneinheiten. Im Zuge der Umstrukturierung des Gebäudes erfolgen der Einbau eines neuen Treppenhauses und der Ausbau des Dachgeschosses mit Einbau von Loggien und der Umbau des Spitzbodens zu Maisonetteebenen der Wohnungen im DG. Die in allen Geschossebenen verbauten Ackermanndecken erfordern besondere statisch-konstruktive Maßnahmen bei Einbauten und Lasterhöhungen sowie bei den Installationsführungen der TGA.

Leistungszeitraum: 2023-2025

© LUNZE ARCHITEKTEN 2025
KUNDENLOGIN
IMPRESSUM
DATENSCHUTZ

Unsere Website verwendet ausschließlich nicht zustimmungspflichtige,
technisch notwendige Cookies, um Ihnen ein angenehmeres Surfen zu ermöglichen.