Menü
  • 12/12_11/03.jpg
  • 12/12_11/02.jpg
  • 12/12_11/01.jpg
  • 12/12_11/04.jpg
  • 12/12_11/05.jpg
  • 12/12_11/06.jpg
  • 12/12_11/07.jpg

Realisierungswettbewerb Errichtung „Sorbisches Wissensforum am Lauenareal“ in Bautzen

Auslober: Stiftung für das Sorbische Volk
Aufgabenstellung: Realisierungswettbewerb nach RPW 2013.Projektziel ist die Errichtung des „Sorbischen Wissensforums am Lauenareal“ in Bautzen. Mit dem „Wissensforum“ soll ein Gebäudekomplex im Zentrum der Stadt Bautzen entstehen, welcher drei Zieldimensionen miteinander verbindet:

1.Innovativer, sichtbarer und anforderungsgerechter Standort für sorbische Wissensinstitutionen. Im „Sorbischen Wissensforum am Lauenareal“ werden das Sorbische Institut e.V. mit Sorbischem Kulturarchiv und Sorbischer Zentralbibliothek sowie das Sorbische Museum an einem gemeinsamen Standort untergebracht.

2. Modellvorhaben nachhaltiges Bauen:
Das „Wissensforum“ soll sich durch die möglichst umfassende Berücksichtigung von Nachhaltigkeitsaspekten in Bezug auf Bauweise, Energiekonzept und Einbindung in die Kreislaufwirtschaft auszeichnen.

3. Aufwertung des Stadtzentrums von Bautzen: Durch Architektur und Funktion des „Wissensforums“ soll die hochwertige Entwicklung der langjährigen innerstädtischen Brachfläche am „Lauenareal“ in Bautzen sowie die Sanierung der denkmalgeschützten „Alten Posthalterei“ gewährleistet werden.

Entwurfsidee:
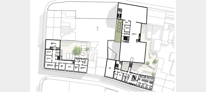
Durch den Verfasser werden Teile des Programms in den Bestandsgebäuden Äußere Lauenstraße 9, Goschwitzer Straße 1/9 und in die Ersatzneubauten Lauengraben 6/8, Goschwitzstraße 7 und Äußere Lauenstraße 7 nachgewiesen. Der überwiegende Teil des Raumprogramms kann jedoch nur durch Ergänzung eines dominanten Baukörpers innerhalb des Bearbeitungsbereiches II und mit Anbindung an die Blockrandbebauung Lauengraben und Goschwitzstraße realisiert werden. Daraus resultiert die städtebauliche Idee, analog der Bestandssituation, die Quartiersränder zu schließen bzw. fortzusetzen und das Quartier baulich zu verdichten. Im Bearbeitungsbereich I werden alle nichtöffentlichen Bereiche des Sorbischen Instituts, im Südteil des Bearbeitungsbereiches II die Flächen der Bibliothek und des Kulturarchivs sowie im restlichen Bearbeitungsbereich II die Flächen des sorbischen Museums angeordnet. Die Neubauflächen im Bearbeitungsbereich II werden mit der gemeinsam genutzten  iefgarage und Magazinräumen des Museums unterlagert.

Leistungszeitraum: 2023

 

 

 

 

 

© LUNZE ARCHITEKTEN 2025
KUNDENLOGIN
IMPRESSUM
DATENSCHUTZ

Unsere Website verwendet ausschließlich nicht zustimmungspflichtige,
technisch notwendige Cookies, um Ihnen ein angenehmeres Surfen zu ermöglichen.